109
1
29 March 2026
Home Photovoltaic System Layout
TOPIC
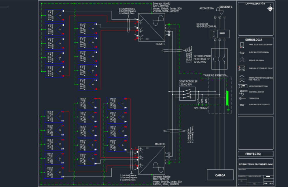
Home Photovoltaic System Layout shows a detailed renewable energy system designed for residential applications. The Home Photovoltaic System Layout includes solar panels, hybrid inverter units, battery storage, and electrical distribution connections. Designers can examine energy flow, DC and AC circuits, and protection components within the system. The drawing clearly presents grid integration, bidirectional metering, and load distribution setup. Home Photovoltaic System Layout is useful for electrical design, sustainable architecture, and renewable energy projects. Engineers can analyze system efficiency, backup solutions, and energy management strategies using this CAD file. The model can be used in residential solar installation planning and technical documentation. Home Photovoltaic System Layout serves as a reference for photovoltaic CAD drawings and energy system design. Home Photovoltaic System Layout about
photovoltaic house project dwg [ Wait Download Link for Home Photovoltaic System Layout ]
Topic TAGS
photovoltaic house project dwg
Previous Topic
Two Storey Residential House Architectural Dwg Project
Next Topic
Home Distribution Panel Layout